製品仕様概要
| 型番 | A-8100 | |
|---|---|---|
| 生産性 | 処理枚数 | 1時間あたり約915枚/64g/m²・A4サイズ(注1) |
| 生産枚数 | 1時間あたり約720枚/90g/m²・A4サイズ(注1) | |
| 製紙 | サイズ | A4/A3/A3延長 |
| 紙厚 | 普通紙:90g/m²相当、厚紙:150g/m²相当~240g/m²相当まで 10段階でユーザー設定可能 | |
| 色指定 |
白紙モード:普通紙、厚紙においてペーパープラス ホワイトによる白色度設定変更が可能(注2) 色紙モード:普通紙、厚紙においてペーパープラス イエロー、ペーパープラス シアン、 ペーパープラス マゼンタによる着色(注3)が可能 |
|
| 給紙 | 大容量給紙ユニット |
給紙可能用紙:PPC用紙(注4) 給紙用紙サイズ:A4(横)64g/m²~108g/m²紙 給紙可能枚数:新紙4,000枚相当 |
| 排紙ユニット | 段数:2段(上排紙トレイ、下排紙トレイ) 収容可能枚数 :[上排紙トレイ(規格外紙用)]A4横(90g/m²紙)約200枚、A3縦(90g/m²紙)約40枚 :[下排紙トレイ(正紙用、シフト機能あり)]A4横(90g/m²紙)約2,600枚、 A3縦(90g/m²紙)約1,300枚 |
|
| 電力 | 電源仕様 | 3相 AC200V 定格電流40A(注5) |
| 稼働中平均消費電力 | 6.5kw | |
| 外形寸法・ 重量 |
外形寸法 (幅×奥行×高さ) |
幅:2,848×奥行:1,428×高さ:2,009(単位:mm) アジャスター付 幅/奥行方向に、給紙部・排紙部の外付けオプション含まず 高さ方向に、表示灯:203mm含まず |
| 重量 | 1,750kg 床耐荷重 430kgf/m² 設置先環境に応じて負荷分散板を用いる | |
| 設置環境 | 騒音 | 約65db以下 |
| 動作環境 | 温度 12℃~28℃ 湿度RH30%~70% (非結露)(注6) | |
| 保管環境 | 温度 4℃~40℃ 湿度RH10%~70% (非結露) |
-
(注1)
紙種に応じて異なります。
-
(注2)
白地用紙を製紙するときは、白地用紙のみを給紙してください。原料古紙への印刷状態により白色度は変化します、白色度設定機能は一定の白色度を保証するものではありません。
-
(注3)
マルチカラー対応。色紙を製紙する場合、同系色の用紙の給紙は可能ですが仕上がり品質に色ムラが出る場合があります。
-
(注4)
用紙は整列セットしてください。ステープルやクリップなど金属付着品や付箋紙は禁忌品です。故障の原因になる可能性がありますので必ず取り除いてください。
折れた紙や複数枚のり付けされた紙、綴じられた紙は給紙不良発生の原因となります。 -
(注5)
電源投入時など瞬間的に40Aに達する場合がありますのでブレーカーは40A以上のものが必要になります。
-
(注6)
機器内の湿度を保つために水道水を使用します。水道水の消費量は使用状況や環境条件により変化します。
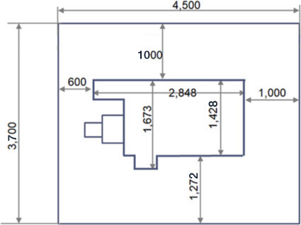
外形寸法、設置に必要なスペース
設置スペース
幅4,500mm×奥行3,700mm×高さ2,500mm
オプション
| 型番(型式) | 仕様 | 標準価格(税込) | |
|---|---|---|---|
| 古紙回収 ボックス |
A-PLSB1 | - | 69,300円 (税別価格 63,000円) |
消耗品
| 型番(型式) | 仕様 | 標準価格(税込) | ||
|---|---|---|---|---|
| ペーパープラス 紙成形に 必要な結合素材 |
|
A-PL01A | ペーパープラス プレーン | オープンプライス |
| A-PL013PA | ペーパープラス プレーン 3本パック | オープンプライス | ||
| A-PL016PMA | ペーパープラス プレーン マンスリーパック(24本) | オープンプライス | ||
|
A-PLA01A | ペーパープラス プレーン 厚紙 | オープンプライス | |
| A-PLA013PA | ペーパープラス プレーン 厚紙 3本パック | オープンプライス | ||
|
A-W01A | ペーパープラス ホワイト | オープンプライス | |
| A-W013PA | ペーパープラス ホワイト 3本パック | オープンプライス | ||
|
A-Y01A | ペーパープラス イエロー | オープンプライス | |
| A-Y013PA | ペーパープラス イエロー 3本パック | オープンプライス | ||
|
A-M01A | ペーパープラス マゼンタ | オープンプライス | |
| A-M013PA | ペーパープラス マゼンタ 3本パック | オープンプライス | ||
|
A-C01A | ペーパープラス シアン | オープンプライス | |
| A-C013PA | ペーパープラス シアン 3本パック | オープンプライス | ||
| メンテナンス バッグ |
PaperLab 導入時期 (2016年12月~ 2020年1月) シリアル番号 (X474000001 ~X474000056) |
A-MB01A | 廃粉捕集専用袋 大:50枚 | オープンプライス |
| A-MB01B | 廃粉捕集専用袋 小:150枚 | オープンプライス | ||
| PaperLab 導入時期 (2020年2月以降) シリアル番号 (X7W9000001~) (XDCE000001~) |
A-MB02 | 廃粉捕集専用袋 120枚 | オープンプライス | |
| スターター キット |
A-SKT02 | (1)ペーパープラス(A-PL01A/A-PLA01A/A-W01A/ A-Y01A/A-M01A/A-C01A) 各色1本 合計6本(2)メンテナンスバッグ(A-MB02)1セット |
オープンプライス | |
製品仕様概要
| 型番 | Q-5000 | |
|---|---|---|
| 生産性 | 処理枚数 | 1時間あたり約500枚/64g/m²・A4サイズ(注1) |
| 生産枚数 | 1時間あたり約360枚/80g/m²・A4サイズ(注1) | |
| 製紙 | サイズ | A4 |
| 紙厚 | 普通紙:80g/m²相当、厚紙:180g/m²(注) (注)現在、対応時期につきましては調整中です。確定次第、ご案内いたします。 | |
| 色指定 | なし(プレーンのみ) | |
| 給紙 | 大容量給紙ユニット |
大容量給紙ユニット:なし 紙片投入量:A4 約700枚 (注)Q-40で細断した紙片に限る |
| 排紙ユニット | 収容可能枚数 :[上排紙トレイ(規格外紙用)]約200枚 :[下排紙トレイ(正紙用)]約1,000枚 |
|
| 電力 | 電源仕様 | 3相 AC200V 定格電流30A(注2) |
| 稼働中平均消費電力 | 3.4kw | |
| 外形寸法・ 重量 |
外形寸法 (幅×奥行×高さ) |
幅:3,340×奥行:875×高さ1,274(単位:mm) |
| 重量 | 1,065kg 床耐荷重 400kgf/m² 設置先環境に応じて負荷分散板を用いる | |
| パネル | パネル | 10.1型タッチパネル |
| 設置環境 | 騒音 | 約63db以下 |
| 動作環境 | 温度 15℃~32℃ 湿度RH50%~70% (非結露)(注3) | |
| 保管環境 | 温度 4℃~40℃ 湿度RH10%~85% (非結露) |
Q-40
| 型番 | Q-40 | |
|---|---|---|
| 電力 | 電源仕様 | 2相 AC100V |
| 外形寸法・ 重量 |
外形寸法 (幅×奥行×高さ) |
幅:508×奥行:519×高さ:975(単位:mm) |
| 重量 | 105kg | |
| パネル | パネル | 4.3インチ タッチパネル式LCD |
| 投入幅 | 投入幅 | 最大幅:310mm (注)A3サイズ以下 |
| カッティング タイプ |
カッティングタイプ | フラットスクエアカット |
| 細断寸法 | 細断寸法 | 3×14mm(ドイツシュレッドDIN規格(DIN66399)のセキュリティレベル4相当) |
| 最大細断枚数 (A4 64g/m²換算) |
最大細断枚数 | 14枚(注)PPC用紙のみ |
| チップボックス 容量 |
チップボックス容量 | A4 約700枚相当(64g/m²紙) (注)重量検知で紙片が約2.8㎏溜まると停止 |
| 設置環境 | 騒音 | 細断時:55dB以下 |
| 動作環境 | 温度 12℃~32℃ 湿度RH20%~70% (非結露) | |
| 保管環境 | 温度 4℃~40℃ 湿度RH10%~85% (非結露) |
-
(注1)
紙種に応じて異なります。
-
(注2)
電源投入時などに瞬間的に30Aに達する場合がありますので、ブレーカーは30A以上のものが必要になります。
-
(注3)
機器内の湿度を保つために水道水を使用します。水道水の使用量は使用状況や環境条件により変化します。
外形寸法、設置に必要なスペース
・背面:100(排気スペース)
(注)背面からのメンテ無
・右側面:650
・左側面;1,000
・正面:1,220
消耗品
| 型番(型式) | 仕様 | 標準価格(税込) | ||
|---|---|---|---|---|
| ペーパープラス 紙成形に 必要な結合素材 |
|
QRPL01 | ペーパープラスリフィルパック | オープンプライス |
| QRPL01-15P | ペーパープラスリフィルパック 15本パック | オープンプライス | ||
| メンテナンス バッグ |
QMB01 | メンテナンスバッグ 60枚 | オープンプライス |
A-8100/Q-5000スペック
| 型番 | A-8100 | Q-5000 | |
|---|---|---|---|
| 生産性 | 処理枚数 | 1時間あたり約915枚/64g/m²・A4サイズ(注1) | 1時間あたり約500枚/64g/m²・A4サイズ(注1) |
| 生産枚数 | 1時間あたり約720枚/90g/m²・A4サイズ(注1) | 1時間あたり約360枚/80g/m²・A4サイズ(注1) | |
| 製紙 | サイズ | A4/A3/A3延長 | A4 |
| 紙厚 | 普通紙:90g/m²相当、厚紙:150g/m²相当~240g/m²相当まで 10段階でユーザー設定可能 | 普通紙:80g/m²相当、厚紙:180g/m²(注) (注)現在、対応時期につきましては調整中です。確定次第、ご案内いたします。 |
|
| 色指定 |
白紙モード:普通紙、厚紙においてペーパープラス ホワイトによる白色度設定変更が可能(注2) 色紙モード:普通紙、厚紙においてペーパープラス イエロー、ペーパープラス シアン、 ペーパープラス マゼンタによる着色(注3)が可能 |
なし(プレーンのみ) | |
| 給紙 | 大容量給紙ユニット |
給紙可能用紙:PPC用紙(注4) 給紙用紙サイズ:A4(横)64g/m²~108g/m²紙 給紙可能枚数:新紙4,000枚相当 |
大容量給紙ユニット:なし 紙片投入量:A4 約700枚(注)Q-40で細断した紙片に限る |
| 排紙ユニット | 段数:2段(上排紙トレイ、下排紙トレイ) 収容可能枚数 :[上排紙トレイ(不良の再生紙排出用)] A4横(90g/m²紙)約200枚、A3縦(90g/m²紙)約40枚 :[下排紙トレイ(良品の再生紙排出用、シフト機能あり)] A4横(90g/m²紙)約2,600枚、 A3縦(90g/m²紙)約1,300枚 |
収容可能枚数 :[上排紙トレイ(損紙用)]約200枚 :[下排紙トレイ(正紙用)]約1,000枚 |
|
| 電力 | 電源仕様 | 3相 AC200V 定格電流40A(注5) | 3相 AC200V 定格電流30A(注6) |
| 稼働中平均消費電力 | 6.5kw | 3.4kw | |
| 外形寸法・ 重量 |
外形寸法 (幅×奥行×高さ) |
幅:2,848×奥行:1,428×高さ:2,009(単位:mm) アジャスター付 幅/奥行方向に、給紙部・排紙部の外付けオプション含まず 高さ方向に、表示灯:203mm含まず |
幅:3,340×奥行:875×高さ1,274(単位:mm) |
| 重量 | 1,750kg 床耐荷重 430kgf/m² 設置先環境に応じて負荷分散板を用いる |
1,065kg 床耐荷重 400kgf/m² 設置先環境に応じて負荷分散板を用いる |
|
| パネル | パネル | 10.1型タッチパネル | 10.1型タッチパネル |
| 設置環境 | 騒音 | 約65db以下 | 約63db以下 |
| 動作環境 | 温度 12℃~28℃ 湿度RH30%~70% (非結露)(注7) | 温度 15℃~32℃ 湿度RH50%~70% (非結露)(注7) | |
| 保管環境 | 温度 4℃~40℃ 湿度RH10%~70% (非結露) | 温度 4℃~40℃ 湿度RH10%~85% (非結露) |
-
(注1)
紙種に応じて異なります。
-
(注2)
白地用紙を製紙するときは、白地用紙のみを給紙してください。原料古紙への印刷状態により白色度は変化します、白色度設定機能は一定の白色度を保証するものではありません。
-
(注3)
マルチカラー対応。色紙を製紙する場合、同系色の用紙の給紙は可能ですが仕上がり品質に色ムラが出る場合があります。
-
(注4)
用紙は整列セットしてください。ステープルやクリップなど金属付着品や付箋紙は禁忌品です。故障の原因になる可能性がありますので必ず取り除いてください。折れた紙や複数枚のり付けされた紙、綴じられた紙は給紙不良発生の原因となります。
折れた紙や複数枚のり付けされた紙、綴じられた紙は給紙不良発生の原因となります。 -
(注5)
電源投入時など瞬間的に40Aに達する場合がありますのでブレーカーは40A以上のものが必要になります。
-
(注6)
電源投入時など瞬間的に30Aに達する場合がありますので、ブレーカーは30A以上のものが必要になります。
-
(注7)
機器内の湿度を保つために水道水を使用します。水道水の使用量は使用状況や環境条件により変化します。
購入をご検討の方
-
月曜日~金曜日9:00~17:30(祝日・当社指定休日を除く)
(注)050で始まる電話番号はKDDI株式会社の電話サービス「KDDI光ダイレクト」を利用しております。











